2020年10月北京大兴区正商杏海苑共有房可选房源信息(户型图+项目位置图)
申购时间:2020年10月9日上午10:00至2020年10月24日下午17:00。
销售价格:全装修费用29000元/平方米。
申购指南:点击查看
户型图:
A1/A1反户型
建筑面积约:79㎡
户型位置:
1、2、3、6号楼一单元01户1-15层、二单元04户1-15层
7号楼一单元01户1-14层、二单元04户1-14层
8号楼一单元01户2-14层、二单元04户1-14层
A2/A2反户型
建筑面积约:89㎡
户型位置:
1、2、3、8号楼一单元02、03户1-15层、二单02、03户1-15层
7号楼一单元02、03户1-14层、二单元02、03户1-14层
6号楼一单元02、03户1-14层、二单元02户1-14层、二单元03户2-14层
A3/A3反户型
建筑面积约:89㎡
户型位置:
1、2、3、6、8号楼一单元04户1-15层、二单01户1-15层
7号楼一单元04户1-14层、二单元01户1-14层
B1/B1反户型
建筑面积约:119㎡
户型位置:
9号楼四单元01、02户1-11层、五单01、02户1-11层
10号楼二单元01、02户1-11层、三单01、02户1-11层
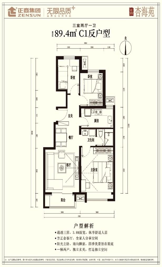
C1/C1反户型
建筑面积约:89㎡
户型位置:
4号楼一单元02户1-10层、二单01、02户1-10层
5号楼一单元01、02户1-10层,二单01、02户1-10层,三单01、02户1-9层,四单01、02户1-11层,五单01户1-11层,六单元01、02户1-11层,七单元01、02户1-8层
9号楼一单元01、02户1-8层,二单01、02户1-8层,三单02户1-11层,六单01、02户1-11层
10号楼一单元01、02户1-11层,四单01户1-11层,五单01、02户1-8层,六单01、02户1-8层
C2/C2反户型
建筑面积约:109㎡
户型位置:
4号楼一单元01户1-10层
5号楼五单元02户1-11层
9号楼三单元01户1-11层
10号楼四单元02户1-11层
项目位置图
项目鸟瞰图
外立面效果图
关注【大京事】微信公众号,输入关键词获得最新的相关信息:
输入“口罩”:北京市各区口罩在线预约/购买;
输入“公租房”:北京公租房申请条件及流程;
输入“共有产权房”:最新北京共有产权房购买政策;
输入“社保” :北京社保查询、补缴申请流程及材料;
输入“公积金”:北京公积金查询、提取、使用指南;
输入“个税”:最新个税计算器、个税专项抵扣指南;
输入“一老一小”:北京一老一小大病医保政策指南;
输入“积分落户”:最新北京市积分落户政策指南;
输入“居住证”:最新北京居住证办理指南全攻略;
输入“新生儿”:最新产检、生育报销、宝宝医保等指南;
输入“出入境”:最新居民护照办理、港澳台通行证办理;
输入“九价”:最新北京九价HPV疫苗信息、预约指南;
———————————–
大京事微信平台
社保|公积金|住房
医疗|就业|婚育|房产等
扫描二维码关注
.jpg)
全关注














